


.

.















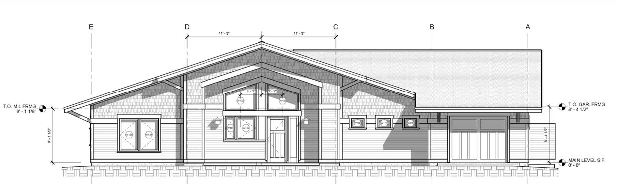
The entry porch with timber framework enhances the entryway's architectural character, offering both structural integrity and visual appeal

.

.

.

.

.
Discover contemporary lakeside living with this exquisite new modern home in Willow River. Meticulously designed by Loon Architects, this residence combines sleek, minimalist aesthetics with unparalleled functionality.
The home features clean lines, expansive glass walls, and open-concept living spaces that seamlessly connect the indoors with the stunning natural beauty outside.
Creating a large window wall in the new 'Marsh room' off the back of the home allowed the clients a year-round panoramic view of the Tonka Bay Marsh.













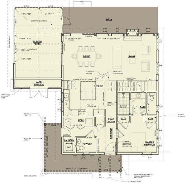
The kids have all grown up and the client wanted to replace their small cabin with one the whole family could use. The zero-step entry, spacious bathrooms and one-level living maximized aging in place without sacrificing the cabin's visitability.

Backyard perspective

Entry perspective.

.

.

.

.
On the bluff line of a windy hill, this new lake home in western Minnesota takes in the sunset views over lake Hendricks.
Loon Architects
3608 15th Avenue S Minneapolis, Minnesota 55407