Nestled on a forested 3-acre lot on the Minnetonka Regional Trail, this property has been thoughtfully designed for aging-in-place with all one-level living. This project was originally designed for 2020 Minneapolis Home And Garden Show to showcase Living in Place design.
Built down the ridge line of the family farm field, this new home will juxtapose the traditional prairie-style architecture with a contemporary style supported by glass and stone. The skylight takes in ambient light throughout the day and the living room's glass wall and large cantilevered deck to the southwest overlook the rolling hills of Northern Wisconsin.

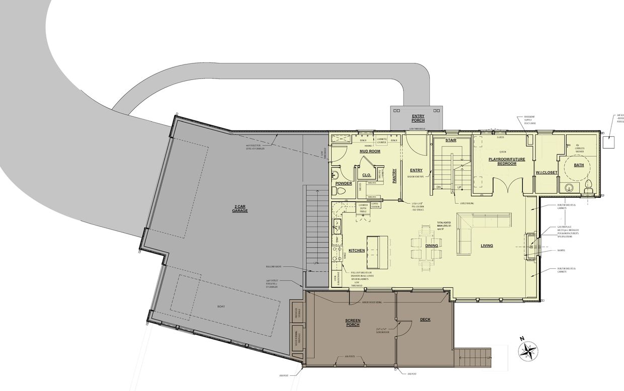
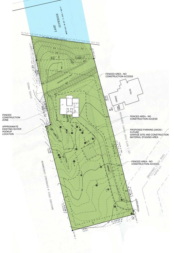
Nestled within the serene beauty of Brickyard Creek Bayfield WI, this new cabin project seeks to harmonize modern comfort with the natural charm of it surroundings. Designed as a tranquil retreat, the cabin will serve as a gateway for relaxation, connection with nature, and cherished moments with family and friends.

The project's vision is to create a space that complements the lush forests, and peaceful ambiance of the Brickyard Creek Community. Incorporating sustainable design principles, the cabin features natural materials, energy efficient systems, and a layout that maximizes views while blending seamlessly into the landscape.


Welcome to our newly developed triplex apartment in the heart of St Paul, Minnesota - a modern living space designed to meet the diverse needs of today's urban dweller. This thoughtful crafted triplex combines contemporary style with functionality, offering three unique residences that provide comfort, convenience, and a true sense of home.
The project entails the design and construction of a charming yet practical cabin nestled along the shores of Long Lake, Minnesota. Inspired by the natural beauty and tranquility of the area, this cabin will serve as a cozy getaway for individuals or families seeking respite from city life and a connection with the outdoors.
The clients had recently purchased this outdated property nestled on the shore of Ward Lake, WI. They decided to completely tear down and build a brand new cabin that will last for generations.

View toward entry



.

.

.

.
View from driveway
01/12
Overlooking the rolling woods and pristine wilderness of Wisconsin, this hunting lodge is designed to blend seamlessly with its natural surroundings while offering all the amenities for a relaxing and functional retreat.

View from the lake

.

.

.

.

.
New home and equestrian complex adjacent to the Chippewa River Valley.
New retirement home on a secluded steep 40-acre site. One no-step entry and ease of use features throughout
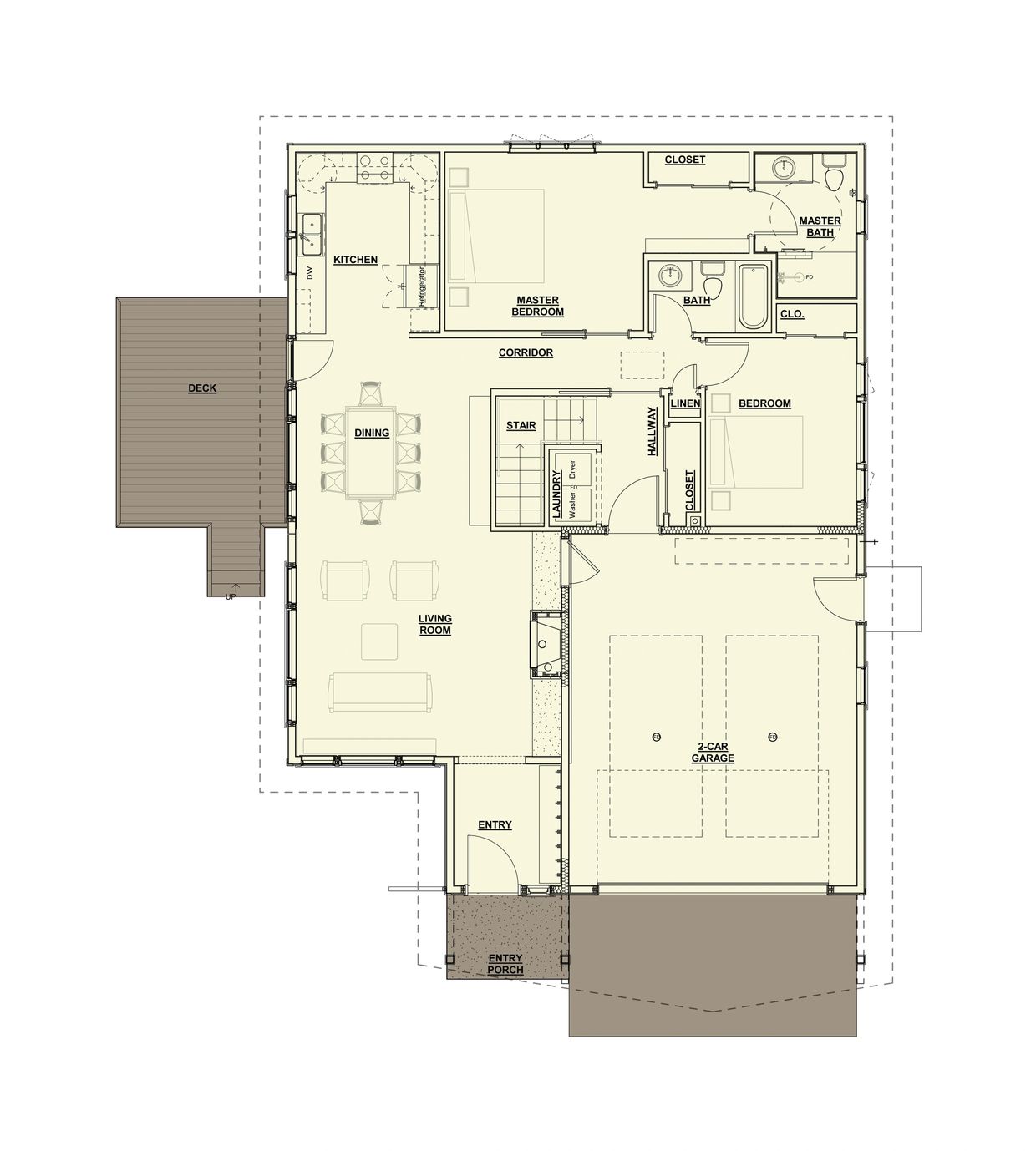
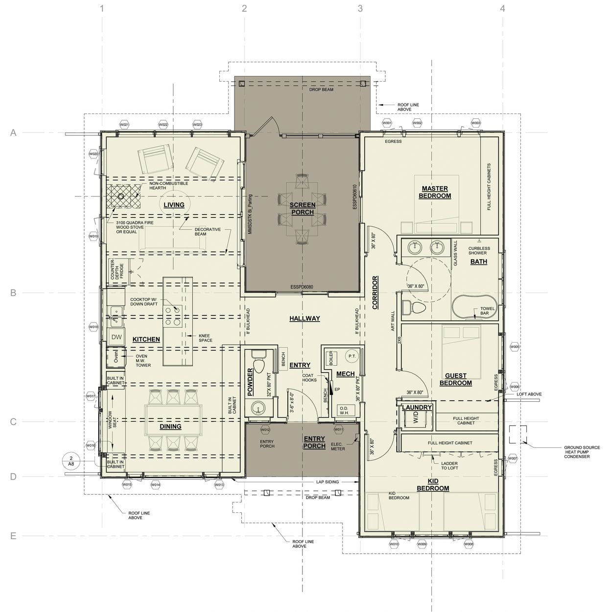
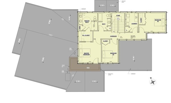
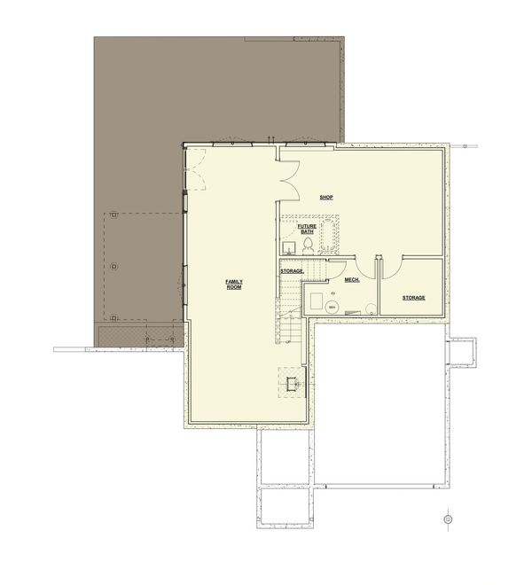
New home for a growing family designed for one-level living

A warm, modern and open design with a fully integrated landscape accentuates the house's contemporary design elements.




Vaulted open living space with bands of high windows for 360 degrees daylight.





Retirement home for a couple with a generous, one-level living space and five-bay auto shop below.













This one-of-kind home, complete with several featured areas for art plus a luxurious cocktail seating arena for guests, is tucked away on Brown's Bay.





Loon Architects
3608 15th Avenue S Minneapolis, Minnesota 55407